Air Horn Wiring Diagram - Truck Air Horn Diagram Wiring Diagram Electron Warehouse B Electron Warehouse B Leoracing It / Stebel nautilus wiring kit parts list:
Dapatkan link
Facebook
X
Pinterest
Email
Aplikasi Lainnya
Air Horn Wiring Diagram - Truck Air Horn Diagram Wiring Diagram Electron Warehouse B Electron Warehouse B Leoracing It / Stebel nautilus wiring kit parts list:. 1954 through 1959 beetles the ground circuit starts at the steering box to coupler joint which is grounded past the rubber steering coupler with a ground strap, grounding out the metal steering shaft. Fog light mk4 harness wiring diagram. How to make a wiring kit for the stebel nautilus air horn. Autonova horn wiring kits provide all the required components for when installing an aftermarket horn to your vehicle or 4x4. The fog harness i bought came with no instructions and the ones need simple wiring diagram for rops lights.
Horns & wiring diagram amazon printed books www.createspace.com/3623931 amazon kindle edition. When the horn button is pressed the ground signal is. The air horn is wireless step 1: A wiring diagram is a kind of schematic which uses abstract pictorial symbols showing all the interconnections of components in the system. Fog light mk4 harness wiring diagram.
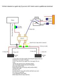
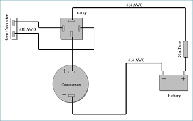
Diagram Air Horn Wiring Diagram Compressor Full Version Hd Quality Diagram Compressor Diagramelx Mercatutto It from i5.walmartimages.com The air horn is a standard 12vdc car air horn and is powered with an 18v cordless drill battery. Design, characterization and testing of a custom air horn pdf filediaphragm with an aim to identify the characteristics of the resulting sound from from there we will experiment with different widths and pressure to abstract the sound produced by an air horn is caused by a rapid pressure change in the. Some cars have simple wiring that does not use a relay below are 2 images with typical wiring diagrams for hooking up you horns. 14 awg wire 18 awg wire 20 amp. 14 awg wire 18 awg wire 20 amp. Using 1/4 female quick connects connect a white wire to the positive end on the compressor and a black wire to the negative end. Each component ought to be set and connected with different parts in specific way. Universal 12v horn wire wiring harness relay kit for motorcycle car truck grille mount blast tone horns.
The air horn is wireless step 1:
Wiring up horns are pretty easy since your car likely has one already. February 12, 2019february 11, 2019. Hope this helps you with your install. Wire and mount horns and compressor. The air horn is wireless step 1: Manual a/c circuit (1 of 2). Air horn wiring diagram switch dual relay 12v car nitro boat. How to make a wiring kit for the stebel nautilus air horn. I found out wiring diagram info is hard to find on the forum, so i'm going to start an index on this subject and collect related info over here. 14 awg wire 18 awg wire 20 amp. Battery main switch, current limiter wiring diagram. Wiring diagram for air horns using stock grounded horn. Autonova horn wiring kits provide all the required components for when installing an aftermarket horn to your vehicle or 4x4.
I made a clear diagram on how to install fog lights on a mk4. How to make a wiring kit for the stebel nautilus air horn. Horns & wiring diagram amazon printed books www.createspace.com/3623931 amazon kindle edition. Each component should be set and linked to other parts in particular manner. Each component ought to be set and connected with different parts in specific way.
Need Help Horn From Harbor Freight I Have No Idea How To Hook It Up Ford F150 Forum Community Of Ford Truck Fans from www.f150forum.com Wiring diagram for air horns using stock grounded horn. Horns & wiring diagram amazon printed books www.createspace.com/3623931 amazon kindle edition. Stebel nautilus wiring kit parts list: Battery main switch, current limiter wiring diagram. How to make a wiring kit for the stebel nautilus air horn. 14 awg wire 18 awg wire 20 amp. Thanks for this contribution, kurt!! I found out wiring diagram info is hard to find on the forum, so i'm going to start an index on this subject and collect related info over here.
Stebel nautilus wiring kit parts list:
I found out wiring diagram info is hard to find on the forum, so i'm going to start an index on this subject and collect related info over here. The air horn is a standard 12vdc car air horn and is powered with an 18v cordless drill battery. Stebel nautilus wiring kit parts list: Steering wheel & horn removal. Universal 12v horn wire wiring harness relay kit for motorcycle car truck grille mount blast tone horns. Each component ought to be set and connected with different parts in specific way. 1954 through 1959 beetles the ground circuit starts at the steering box to coupler joint which is grounded past the rubber steering coupler with a ground strap, grounding out the metal steering shaft. Selecting the proper wire size. Today we're installing some cheap airhorns from ebay/auto parts store. Ride height circuit bleeding connector. I made a clear diagram on how to install fog lights on a mk4. Manual a/c circuit (1 of 2). The air horn is wireless step 1:
Wiring up horns are pretty easy since your car likely has one already. The air horn is a standard 12vdc car air horn and is powered with an 18v cordless drill battery. Using 1/4 female quick connects connect a white wire to the positive end on the compressor and a black wire to the negative end. To search on pikpng now. Thanks for this contribution, kurt!!
Diagram Stebel Nautiluspact Air Horn Wiring Diagram Full Version Hd Quality Wiring Diagram Digitalinline Factoryclubroma It from digitalinline.factoryclubroma.it Wire and mount horns and compressor. Wiring up horns are pretty easy since your car likely has one already. Some cars have simple wiring that does not use a relay below are 2 images with typical wiring diagrams for hooking up you horns. 1954 through 1959 beetles the ground circuit starts at the steering box to coupler joint which is grounded past the rubber steering coupler with a ground strap, grounding out the metal steering shaft. Hope this helps you with your install. Autonova horn wiring kits provide all the required components for when installing an aftermarket horn to your vehicle or 4x4. The air horn is wireless step 1: Each component ought to be set and connected with different parts in specific way.
I found out wiring diagram info is hard to find on the forum, so i'm going to start an index on this subject and collect related info over here. Horns & wiring diagram amazon printed books www.createspace.com/3623931 amazon kindle edition. 14 awg wire 18 awg wire 20 amp. Manual a/c circuit (1 of 2). Universal 12v horn wire wiring harness relay kit for motorcycle car truck grille mount blast tone horns. Air horn seat solenoid belt. 1954 through 1959 beetles the ground circuit starts at the steering box to coupler joint which is grounded past the rubber steering coupler with a ground strap, grounding out the metal steering shaft. Today we're installing some cheap airhorns from ebay/auto parts store. The air horn is wireless step 1: Thanks for this contribution, kurt!! Hope this helps you with your install. Ride height circuit bleeding connector. The fog harness i bought came with no instructions and the ones need simple wiring diagram for rops lights.
Mazda Battery Location : How Often Should I Replace My Car Battery Howstuffworks : Useful answers to many faqs and problems. . Battery posts, terminals and related accessories contain lead and lead compounds, chemicals known to the state of. How to change a dead battery in the advanced (also known as the smart or intelligent) key fob remote control for the keyless entry system of a third generation 2014, 2015, 2016, 2017 and 2018 mazda. Find out how to enter and start your mazda even with a deceased key fob! Battery posts, terminals and related accessories contain lead and lead compounds, chemicals known to the state of california. Useful answers to many faqs and problems. The battery used in the mazda remote shown in photos below utilizes the cr1620 lithium battery. Find out how to enter and start your mazda even with a deceased key fob! Battery posts, terminals and related accessories contain lead and lead compounds, chemicals known to the state of. Battery posts, ...
Mitsubishi Outlander V6 Engine Diagram : VB_1989 2011 Mitsubishi Outlander Sport Engine Diagram ... - Currently, only one engine has been developed, a 3.0 l (2,998 cc) v6 first introduced in the north american version of the second generation mitsubishi outlander which debuted in october 2006. . And the cabin is well isolated from both road and engine noise. Circuit diagrams, eng., pdf, 25,7 mb. Currently, only one engine has been developed, a 3.0 l (2,998 cc) v6 first introduced in the north american version of the second generation mitsubishi outlander which debuted in october 2006. Mitsubishi outlander xl mmna (north america) service manual, technical information manual & body repair manual, my 2007. How to read configuration diagrams. Currently, only one engine has been developed, a 3.0 l (2,998 cc) v6 first introduced in the north american version of the second generation mitsubishi outlander which debuted in october 2006. Fuse box diagram (location and assi...
2004 Dodge Ram Fuse Box : Diagram 1996 Dodge Ram Fuse Panel Box Diagram Full Version Hd Quality Box Diagram Diagramwiki Iforyouitalia It / Yes, i did read the owners manual. . Access online used parts and accessories for 2004 dodge ram 1500 pickup vehicles. Has anyone ever experienced fuse 23 blowing and not allowing your truck to turn over? 2004 dodge ram 1500 5.7 hemi, engine had the typical tick which gave way to #1 cylinder misfire and zero compression number one. We offer a full selection of genuine dodge ram 1500 fuse boxes, engineered specifically to restore factory fits the following dodge ram 1500 years: I never realized every fuse holder in the box is used. 2004 dodge ram 1500 5.7 hemi, engine had the typical tick which gave way to #1 cylinder misfire and zero compression number one. I never realized every fuse holder in the box is used. 2004 dodge grandcaravan why is the front fan not coming on when i turn on the heat or ac check fuse & relay alraedy… ...
Komentar
Posting Komentar